дом в КП Залесье, ID 6729

ID 6729

20 фотографий

340 000 000 4 769 100 4 107 000

Забронировать просмотр

550 кв. м

21 сотка

4 спальни

Дом
  • Общая площадь: 550 м²
  • Количество комнат: 5
  • Количество этажей: 2
  • Расстояние от МКАД: 88 км.
  • Направление: Новорижское шоссе
  • Количество спален: 4
  • Количество ванных комнат: 7
  • Отделка: под ключ
  • Балкон: да
  • Камин: да
  • Второй свет: да
  • Материал стен: деревянный
  • Новый дом: да
  • Тип участка: прилесной
  • Панорамные окна: да
  • Красивый вид из окна: да
  • Ипотека: да
  • Сауна: да
Инфраструктура
  • Охрана
  • Детские площадки
  • Ресторан
  • Парк
  • Поселок у леса
  • Видеонаблюдение
  • СПА-зона
Коммуникации
  • Газ: центральный
  • Водоснабжение: центральное
  • Электричество: есть
  • Канализация: центральная
  • Ливневая канализация: есть
  • Дорожное покрытие: асфальт
  • Освещение поселка: есть

Описание

ID 6729

Предлагается к продаже новый эксклюзивный дом площадью 550 кв.м. на лесном участке 21соток в загородной клубной резиденции "Залесье".

Дом из клееного бруса (брус увеличенного размера).
Уравновешенная лаконичная архитектура, не отвлекающая от созерцания природы через панорамные окна. Наполненные светом и воздухом спальни с отдельными комфортными гардеробными. Натуральные тона и природные материалы, используемые для отделки, начиная с просторной прихожей со своим гардеробом и заканчивая игровыми зонами. Множество продуманных вспомогательных и хозяйственных зон. Большая летняя терраса.

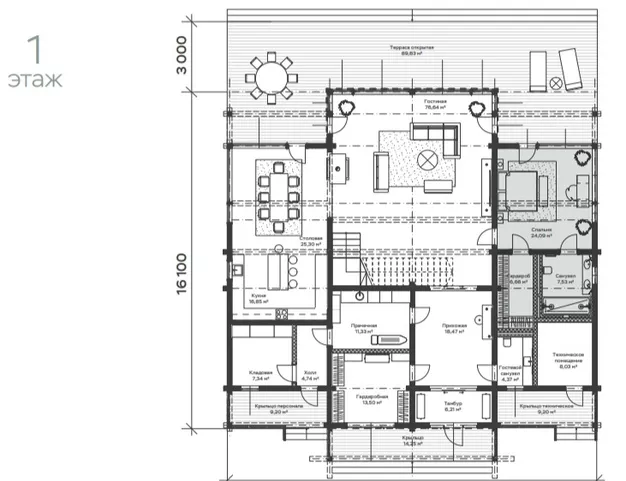
Планировка

1 этаж

прихожая, гардеробная, гостевой с/у, гостиная, кухн-столовая, гостевая спальня со своей гардеробной и c/у, прачечная, кладовая, тех.помещение.

2 этаж

мастер-блок с зоной отдыха, своей гардеробной и 2 с/у, 2 спальни со своими гардеробными и с/у.

Загородная резиденция "Залесье" - это камерный проект, расположенный в уникальном месте среди вековых реликтовых лесов Клинского района Московской области. Проект для тех, кто любит комфорт и ценит уединенность.

• Охраняемая территория 24/7 без машин и без заборов

• Консьерж-сервис премиум-класса

• Ландшафтный дизайн в стиле английского сада

• Клубный дом для всех жильцов поселка

• Детская площадка и зона отдыха

• Баня на дровах.

Не устраивает цена?

/images/thumbs/h200w150/img_80091605181740_0001_210_210_crop.webp

Ваш консультант:

Юлия Глаголева

8(495)120-11-21
Подобрать дом под мой бюджет

Поселок Залесье

11 объектов

коттеджный посёлок Залесье, городской округ Клин, Московская область, коттеджный посёлок Залесье , Новорижское шоссе, 88 км от МКАД

Информация о поселке

Похожие объекты

Надоело искать?

Оставьте телефон и мы поможем Вам в выборе

Оставить телефон