дом в КП Корнер Лапино, ID 7561

ID 7561

7 фотографий

194 000 000 2 463 900 2 111 100

Забронировать просмотр

360 кв. м

14 соток

5 спален

Дом
  • Общая площадь: 360 м²
  • Количество комнат: 5
  • Количество этажей: 2
  • Расстояние от МКАД: 20 км.
  • Направление: Рублево-Успенское шоссе
  • Количество спален: 5
  • Количество ванных комнат: 6
  • Отделка: под отделку
  • Балкон: да
  • Второй свет: да
  • Материал стен: кирпичный
  • Новый дом: да
  • Тип участка: парковый
  • Панорамные окна: да
  • Красивый вид из окна: да
  • Баня: да
Инфраструктура
  • Охрана
  • Детские площадки
  • Парк
  • Спортивная площадка
  • Видеонаблюдение
  • СПА-зона
Коммуникации
  • Газ: магистральный
  • Водоснабжение: скважина
  • Электричество: есть
  • Канализация: центральная
  • Ливневая канализация: есть
  • Дорожное покрытие: асфальт
  • Освещение поселка: есть

Описание

ID 7561
Продается современный дом общей площадью 360 кв.м на участке 13,98 соток в закрытом КП "Corner Lapino" в 24 км от МКАД по 1-му Успенскому шоссе.

"Corner Lapino"- современные коттеджи в охраняемом посёлке в Одинцовском районе возле Новодарьинского леса и реки Медвенки.
В посёлке построено 30 современных коттеджей.

Все дома выполнены в единой архитектурной концепции и представлены в трех различных проектах.

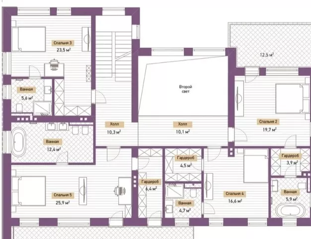
Планировка


1 этаж

холл, гостинная, столовая с выходом на террасу, кухня, спальня, ванная, сауна, тех.помещение, гараж на 2 автомобиля


2 этаж

холл, 2 спальни со своими ванными, 2 спальни со своими гардеробными и ванными, терраса


Corner Lapino представляет собой идеальное сочетание уюта, тишины и хорошей экологической обстановки из-за сохранённой природы.
Внутри посёлка расположена современная детская площадка, а также пешие и велодорожки.

А так же в доступности находятся прогулочные лесные зоны.

В пешей доступности расположено все для комфортной жизни: торговые центры, известные сетевые продуктовые магазины, фитнесс центр и спортивные секции для детей, медцентр "Лапино", детский сад и центр раннего развития, рестораны, химчистки, рынок свежих продуктов и многое другое.

Платная трасса Северный обход Одинцова находится в трех минутах езды, дорога до Москва-Сити займет всего 25 минут вашего времени.

Не устраивает цена?

/images/thumbs/h200w150/img_80091605181740_0001_210_210_crop.webp

Ваш консультант:

Юлия Глаголева

8(495)120-11-21
Подобрать дом под мой бюджет

Поселок Корнер Лапино

13 объектов

КП Корнер Лапино, д. Лапино , Рублево-Успенское шоссе, 20 км от МКАД

Информация о поселке

Похожие объекты

Надоело искать?

Оставьте телефон и мы поможем Вам в выборе

Оставить телефон