дом в КП Новолеоново, ID 7131

ID 7131

16 фотографий

21 900 000 299 500 257 100

Забронировать просмотр

160 кв. м

9 соток

3 спальни

Дом
  • Общая площадь: 160 м²
  • Количество комнат: 4
  • Количество этажей: 2
  • Расстояние от МКАД: 56 км.
  • Направление: Новорижское шоссе
  • Количество спален: 3
  • Количество ванных комнат: 3
  • Отделка: под ключ
  • Второй свет: да
  • Материал стен: деревянный
  • Новый дом: да
  • Тип крыши: металлочерепица
  • Тип участка: парковый
  • Панорамные окна: да
  • Красивый вид из окна: да
  • Ипотека: да
  • Баня: да
Инфраструктура
Коммуникации
  • Газ: центральный
  • Водоснабжение: центральное
  • Электричество: есть
  • Канализация: центральная
  • Ливневая канализация: есть
  • Дорожное покрытие: асфальт
  • Освещение поселка: есть

Описание

ID 7131

Предлагается к продаже НОВЫЙ дом в Скандинавском стиле с отделкой "под ключ" 160 м2, расположенный на участке площадью 9,13 соток в коттеджном поселке Новолеоново по Новорижскому шоссе.

Дом полностью готов к проживанию (с мебелью и техникой).

Установлена система "умный дом": тепоый пол и рекуператоры. Въезд на территорию участка осуществляется через автоматические откатные ворота.


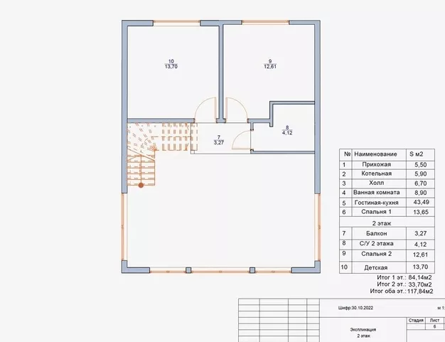
Планировка


1 этаж
кухня-гостиная 44м2, спальня, гардеробная, прихожая, постирочная, котельная, большой санузел с сауной, душевой и ванной.


2 этаж
2 спальни, одна из них мастер-спальня с санузлом.


На участке выполнены ландшафтные работы, высажены великолепные сосны и туи.

КП «Новолеоново» – уютный камерный поселок бизнес-класса в умеренной отдаленности от урбанистической среды. На развязке Кострово-Мансурово, в 49 км. от МКАД, между Новорижским и Волоколамским шоссе – зеленый экологически привлекательный поселок “Новолеоново”. Вблизи малых поселений Кострово и Леоново со всей необходимой инфраструктурой для жителей поселка. Самая главная достопримечательность и важное природное преимущество КП – большой парк в реликтовом лесу.

В 500 метрах от КПП - отель Hilton Garden с рестораном, фитнес залом, SPA-зоной с бассейном. Здесь можно взять на прокат квадроцикл или снегоход, в зависимости от времени года, получить незабываемые эмоции и выброс адреналина.

Не устраивает цена?

/images/thumbs/h200w150/img_80091605181740_0001_210_210_crop.webp

Ваш консультант:

Юлия Глаголева

8(495)120-11-21
Подобрать дом под мой бюджет

Поселок Новолеоново

3 объекта

Московская область, городской округ Истра, коттеджный посёлок Новолеоново , Новорижское шоссе, 56 км от МКАД

Информация о поселке