дом в КП Гринфилд, ID 5211

ID 5211

20 фотографий

310 000 000 3 920 800 3 392 100

Забронировать просмотр

650 кв. м

20 соток

5 спален

Дом
  • Общая площадь: 650 м²
  • Количество комнат: 6
  • Количество этажей: 3
  • Расстояние от МКАД: 19 км.
  • Направление: Новорижское шоссе
  • Количество спален: 5
  • Количество ванных комнат: 1
  • Отделка: под ключ
  • Гараж: да
  • Камин: да
  • Второй свет: да
  • Материал стен: экспериментальные материалы
  • Новый дом: да
  • Тип крыши: натуральная черепица
  • Тип участка: парковый
  • Панорамные окна: да
  • Красивый вид из окна: да
Инфраструктура
  • Охрана
  • Салон красоты
  • Супермаркет
  • Школа
  • Детские площадки
  • Ресторан
  • Парк
  • Видеонаблюдение
Коммуникации
  • Газ: есть
  • Водоснабжение: центральное
  • Электричество: есть
  • Канализация: центральная
  • Ливневая канализация: есть
  • Дорожное покрытие: асфальт
  • Освещение поселка: есть

Описание

ID 5211

Предлагается к продаже современный просторный дом на стадии внутренней отделки площадью 650 м2 на участке 20 сот в элитном поселке Гринфилд, 19 км от МКАД по Новорижскому шоссе.

Дом расположен на участке 20 соток. Участок благоустроен и ухожен, высажены крупномеры (Туи). Сделана ливневая канализация, освещение, автополив, дренаж.

Сам дом из кирпича, отапливаемый, под отделку. Котельная работает.

Электроэнергия 70 кВт на дом!

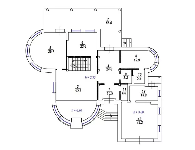
Планировка

1 этаж

холл, гостиная, кухня-столовая и кабинет с выходом на террасу, с/у, гостевая спальня со своим с/у, бойлерная, гараж.

2 этаж

мастер-спальня со своей гардеробной и с/у, 2 спальни со своими с/у, комната свободного назначения.

Мансарда

игровая, тренажерный зал, комната отдыха, с/у, сауна, спальня со своей гостиной и с/у, постирочная.

На территории поселка красивое озеро, парк, прогулочные и пляжные зоны, детские и спортивные площадки, ресторан, салон красоты, СПА. Круглосуточная охрана.

Не устраивает цена?

/images/thumbs/h200w150/img_80091605181740_0001_210_210_crop.webp

Ваш консультант:

Юлия Глаголева

8(495)120-11-21
Подобрать дом под мой бюджет

Поселок Гринфилд

18 объектов

Гринфилд пос. , Новорижское шоссе, 19 км от МКАД

Информация о поселке

Похожие объекты

Надоело искать?

Оставьте телефон и мы поможем Вам в выборе

Оставить телефон