дом в КП Молоденово, ID 7173

ID 7173

22 фотографии

119 305 000 1 550 000 1 327 100

Забронировать просмотр

484 кв. м

12 соток

5 спален

Дом
  • Общая площадь: 484 м²
  • Количество комнат: 6
  • Количество этажей: 2
  • Расстояние от МКАД: 19 км.
  • Направление: Рублево-Успенское шоссе
  • Количество спален: 5
  • Количество ванных комнат: 6
  • Отделка: под ключ
  • Балкон: да
  • Материал стен: кирпичный
  • Новый дом: да
  • Тип крыши: натуральная черепица
  • Тип участка: парковый
  • Панорамные окна: да
  • Красивый вид из окна: да
Инфраструктура
Коммуникации
  • Газ: магистральный
  • Водоснабжение: скважина
  • Электричество: есть
  • Канализация: септик
  • Ливневая канализация: есть
  • Дорожное покрытие: асфальт
  • Освещение поселка: есть

Описание

ID 7173

Предлагается к продаже новый светлый дом 484 кв.м. на участке с ландшафтным дизайном 12 соток в д. Молоденово (ГП-5) в 19 км от МКАД.

Витражное остекление и большое количество окон наполняет дом светом и пространством. В отделке использованы только высококачественные материалы. Здесь есть все для комфортной жизни: просторная кухня с потолками 3,15 метров и выходом на террасу, 5 спален со своими гардеробными и ванными комнатами, кабинет. Дом оснащен всеми необходимыми инженерными системами: котельная с основным и резервным котлами отопления и нагрева воды, кондиционирование, многоуровневая очистка воды, вентиляция.


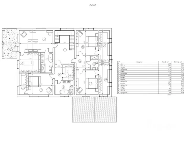
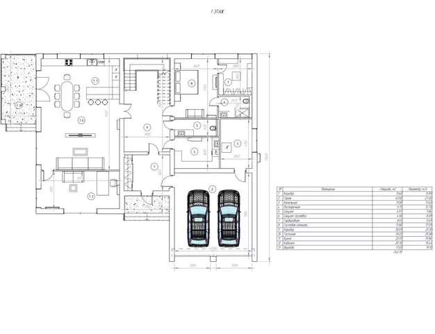
Планировка

1 этаж
прихожая с гардеробной, гостиная, кухня-столовая, кабинет, с/у, спальня с санузлом и гардеробной (отдельным блоком, может использоваться для персонала);

2 этаж
4 спальни с гардеробными и санузлами.


Озеленение выполнено с использованием туй, которые вырастут и создадут эффект живой изгороди. На участке свои березы. Парковка перед домом на 4 автомобиля, гараж на 2 автомобиля с выходом в дом. Удобное расположение в поселке, приватность, безопасность.

Не устраивает цена?

/images/thumbs/h200w150/img_80091605181740_0001_210_210_crop.webp

Ваш консультант:

Юлия Глаголева

8(495)120-11-21
Подобрать дом под мой бюджет

Поселок Молоденово

3 объекта

Молоденово , Рублево-Успенское шоссе, 19 км от МКАД

Информация о поселке

Похожие объекты

Надоело искать?

Оставьте телефон и мы поможем Вам в выборе

Оставить телефон