дом в КП Ильинские Холмы, ID 6947

ID 6947

9 фотографий

230 000 000 3 045 300 2 605 300

Забронировать просмотр

475 кв. м

14 соток

3 спальни

Дом
  • Общая площадь: 475 м²
  • Количество комнат: 4
  • Количество этажей: 2
  • Расстояние от МКАД: 39 км.
  • Направление: Новорижское шоссе
  • Количество спален: 3
  • Количество ванных комнат: 5
  • Отделка: под ключ
  • Балкон: да
  • Камин: да
  • Новый дом: да
  • Тип крыши: плоская кровля
  • Тип участка: прилесной
  • Панорамные окна: да
  • Красивый вид из окна: да
  • Ипотека: да
  • Баня: да
Инфраструктура
Коммуникации
  • Газ: магистральный
  • Водоснабжение: скважина
  • Электричество: есть
  • Канализация: септик
  • Ливневая канализация: есть
  • Дорожное покрытие: асфальт
  • Освещение поселка: есть

Описание

ID 6947

Предлагается к продаже новый дом под чистовую отделку 475 кв.м. на участке 14,5 соток в закрытом коттеджном поселке "Ильинские Холмы" в 39 км от МКАД.

Дом построен из газоблоков, с монолитными перекрытиями, плоская кровля, установлены двойные алюминиевые стеклопакеты.

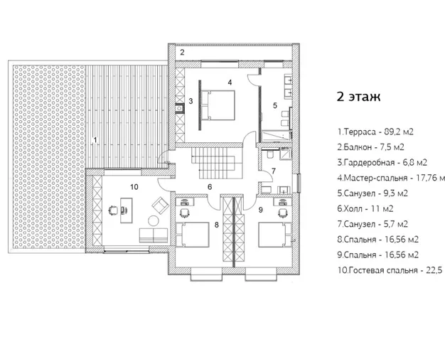
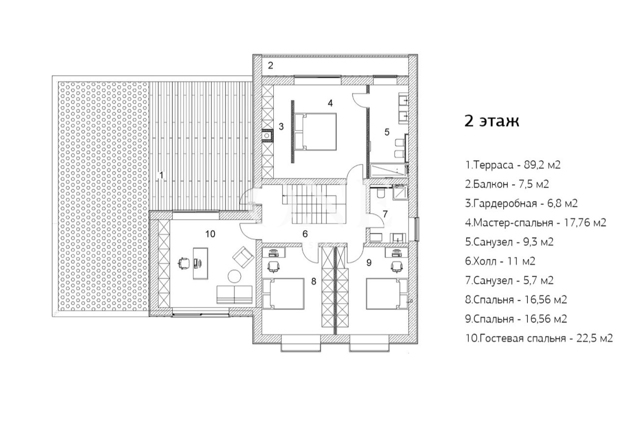
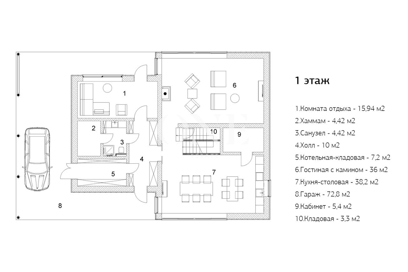
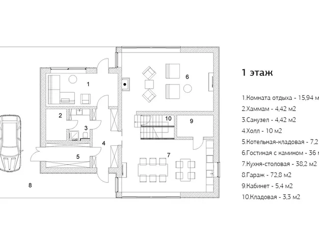
Планировка

1 этаж
холл, гостиная, кухня-столовая, кабинет, СПА-зона: комната отдыха, хаммам; с/у , котельная-кладовая.


2 этаж
мастер-спальня со своей гардеробной и с/у, 2 спальни, с/у, комната отдыха (спальня), терраса.

В коттеджном поселке "Ильинские Холмы" всего 25 домов. На выбор три планировки.

Есть спортивная площадка и площадка для детей. Просторная гостевая парковка и комфортная лаунж-зона при въезде в поселок. Безопасная территория, въезд через КПП, круглосуточное видеонаблюдение.

Вокруг – тишина и лес, создающий атмосферу семейного уединения и близости к природе. Выигрышное расположение позволяет менее чем за час оказаться в самом центре Москвы. Из посёлка можно выехать на Ильинское, Новорижское или Минское шоссе и добраться до центра Москвы. Москва-река в двух шагах, хвойный лес вокруг.

Не устраивает цена?

/images/thumbs/h200w150/img_80091605181740_0001_210_210_crop.webp

Ваш консультант:

Юлия Глаголева

8(495)120-11-21
Подобрать дом под мой бюджет

Поселок Ильинские Холмы

8 объектов

п. Мозжинка, КП Ильинские Холмы , Новорижское шоссе, 39 км от МКАД

Информация о поселке