дом в КП Ильинские Холмы, ID 6949

ID 6949

12 фотографий

К сожалению данное объявление неактуально.
Оставьте свои контактные данные и мы подберем лучшую недвижимость в Москве и области с учетом ваших пожеланий.

Подобрать дом под мой бюджет

Похожие объекты

Надоело искать?

Оставьте телефон и мы поможем Вам в выборе

Оставить телефон
Дом
  • Общая площадь: 439 м²
  • Количество комнат: 4
  • Количество этажей: 2
  • Расстояние от МКАД: 39 км.
  • Направление: Новорижское шоссе
  • Количество спален: 3
  • Количество ванных комнат: 5
  • Отделка: под отделку
  • Балкон: да
  • Камин: да
  • Новый дом: да
  • Тип крыши: плоская кровля
  • Тип участка: прилесной
  • Панорамные окна: да
  • Красивый вид из окна: да
  • Ипотека: да
  • Баня: да
Инфраструктура
Коммуникации
  • Газ: магистральный
  • Водоснабжение: скважина
  • Электричество: есть
  • Канализация: септик
  • Ливневая канализация: есть
  • Дорожное покрытие: асфальт
  • Освещение поселка: есть

Описание

ID 6949

Предлагается к продаже новый дом под чистовую отделку 439 кв.м. на участке 10 соток в закрытом коттеджном поселке "Ильинские Холмы" в 39 км от МКАД.

Дом построен из газоблоков, с монолитными перекрытиями, плоская кровля, установлены двойные алюминиевые стеклопакеты.

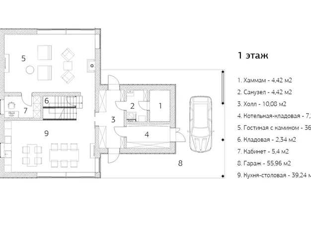
Планировка

1 этаж
холл, гостиная, кухня-столовая, кабинет, СПА-зона: хаммам, с/у , котельная-кладовая.


2 этаж
мастер-спальня со своей гардеробной и с/у, 2 спальни, с/у, терраса.

В коттеджном поселке "Ильинские Холмы" всего 25 домов.

Есть спортивная площадка и площадка для детей. Просторная гостевая парковка и комфортная лаунж-зона при въезде в поселок. Безопасная территория, въезд через КПП, круглосуточное видеонаблюдение.

Вокруг – тишина и лес, создающий атмосферу семейного уединения и близости к природе. Выигрышное расположение позволяет менее чем за час оказаться в самом центре Москвы. Из посёлка можно выехать на Ильинское, Новорижское или Минское шоссе и добраться до центра Москвы. Москва-река в двух шагах, хвойный лес вокруг.

Не устраивает цена?

/images/thumbs/h200w150/img_80091605181740_0001_210_210_crop.webp

Ваш консультант:

Юлия Глаголева

8(495)120-11-21
Подобрать дом под мой бюджет

Поселок Ильинские Холмы

8 объектов

п. Мозжинка, КП Ильинские Холмы , Новорижское шоссе, 39 км от МКАД

Информация о поселке