дом в КП РАН Новодарьино, ID 7913

ID 7913

29 фотографий

300 000 000 420 000 000 ₽ 3 732 300 5 387 700 $ 3 186 500 4 636 300 €

Забронировать просмотр

550 кв. м

25 соток

5 спален

Дом
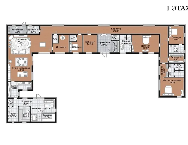
  • Общая площадь: 550 м²
  • Количество комнат: 6
  • Количество этажей: 1
  • Расстояние от МКАД: 20 км.
  • Направление: Рублево-Успенское шоссе
  • Количество спален: 5
  • Количество ванных комнат: 7
  • Отделка: под ключ
  • Второй свет: да
  • Материал стен: блочный
  • Новый дом: да
  • Тип крыши: гибкая черепица
  • Тип участка: прилесной
  • Панорамные окна: да
  • Красивый вид из окна: да
  • Ипотека: да
  • Баня: да
Коммуникации
  • Газ: магистральный
  • Водоснабжение: центральное
  • Электричество: есть
  • Канализация: септик
  • Ливневая канализация: есть
  • Дорожное покрытие: асфальт
  • Освещение поселка: есть

Описание

ID 7721

✨ Вилла Aura — одноуровневый дом площадью 550 м² с функциональной планировкой и потолками до 7 метров.
Интерьер выполнен в скандинавском стиле с элементами рустика и contemporary: светлые пространства, натуральные материалы, фактурные акценты и воздушность создают гармонию уюта и масштаба.
В доме предусмотрено всё для комфортной жизни:
просторная гостиная-столовая с кухней и отдельной технической кухней, холл-галерея, гардеробные, 4 спальни — каждая со своим с/у и гардеробной, а также кабинет и игровая комната в двух уровнях.
SPA-зона баней на дровах, хаммамом и джакузи создаёт атмосферу релакса и полного восстановления прямо внутри дома.
Технологичность не уступает эстетике: приточно-вытяжная вентиляция, кондиционирование, повышенное давление воды, водоочистка, электроприводы штор, датчики протечек, видеонаблюдение, закладные под бассейн на участке,

мощность 25 кВт электричества.
Гараж на 2 машины с полноценной квартирой для персонала над ним (2 комнаты, кухня, душевая), рядом — парковка ещё на 3 автомобиля.
🌿 Участок площадью 25 соток утопает в зелени под вековыми дубами. Вилла расположена в уникальном стародачном месте — посёлке Новодарьино РАН, всего в 20 км по Рублёво-Успенскому шоссе.
🚗 Уникальная логистика: дорога до Москва-Сити занимает всего 30 минут в любое время суток. В шаговой доступности — вся необходимая инфраструктура: «Азбука вкуса», ВкусВилл, торговые центры, медицинские учреждения премиум-класса — Центр «Мать и дитя» и клиника «Лапино».
Вилла Aura — это редкое сочетание природы, статуса и современного комфорта в одном пространстве.

Не устраивает цена?

/images/thumbs/h200w150/img_80091605181740_0001_210_210_crop.webp

Ваш консультант:

Юлия Глаголева

8(495)120-11-21
Подобрать дом под мой бюджет

Поселок РАН Новодарьино

3 объекта

дачный посёлок Новодарьино РАН, деревня Новодарьино, Одинцовский городской округ, Московская область , Рублево-Успенское шоссе, 20 км от МКАД

Информация о поселке

Похожие объекты

Надоело искать?

Оставьте телефон и мы поможем Вам в выборе

Оставить телефон