участок в КП Молоденово, ID 7333

ID 7333

Земли поселений 

15 фотографий

950 000 000 12 991 100 11 152 500

Забронировать просмотр

5 га

Участок
  • Площадь: 5 га
  • Расстояние от МКАД: 19 км.
  • Категория земель: Земли поселений
  • Назначение земли: ИЖС
Инфраструктура
Коммуникации
  • Газ: магистральный
  • Электричество: есть
  • Канализация: Не используется
  • Ливневая канализация: есть
  • Дорожное покрытие: асфальт
  • Освещение поселка: есть

Описание

ID 7333

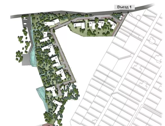
Продается уникальный лесной участок на 2-ом Успенском шоссе — 5 Га премиальной земли с удобным выездом на платную трассу!
Идеальное место для создания элитного коттеджного поселка — эскизная концепция уже разработана!
Все коммуникации на участке — все готово для старта строительства:
Электричество: Собственная подстанция мощностью 75 кВт, обеспечивающая надежность и возможность увеличения мощности для масштабных проектов.
Газ: Газопровод проходит по границе участка — моментальное подключение к магистральному газопроводу.
Водоснабжение: Проработанная планировка участка с учетом разных вариантов застройки и автономного водозаборного узла.
Канализация: Возможность установки локальных очистных сооружений с уже выделенным участком под ЛОС и согласованными техусловиями на сброс.
Этот участок — готовая база для строительства коттеджей премиум-класса с удобным доступом и всей необходимой инфраструктурой.
Отличное предложение для инвесторов и застройщиков!

Не устраивает цена?

/images/thumbs/h200w150/img_80091605181740_0001_210_210_crop.webp

Ваш консультант:

Юлия Глаголева

8(495)120-11-21
Подобрать участок под мой бюджет

Поселок Молоденово

3 объекта

Молоденово , Рублево-Успенское шоссе, 19 км от МКАД

Информация о поселке